Rodney Road, Kingswood, Bristol, BS15 1EG
homeTerraced
bed3 Bedroom
bathtub2 Bathroom
£365,000
Sold STC
  • Beautifully Presented Three Bedroom Home
  • Open Plan Kitchen, Dining Room & Lounge
  • Three Generously Sized Double Bedrooms
  • Spacious Modern Family Bathroom
  • Master Bedroom & En-suite - Second Floor
  • Beautiful Views
  • Generous Rear Garden - Low Maintenance
  • Versatile Garden Room
  • Sought After Location

Summary

Beautifully Presented 3-Bed Terraced Home in Sought-After Kingswood

Welcome to 57 Rodney Road, a stylish and spacious three-bedroom home offering modern open-plan living and a fantastic amount of space across three floors.

Step inside to an inviting hallway that leads directly to the contemporary kitchen, flowing seamlessly into the dining room and bright lounge. This open-plan layout creates a light, airy feel throughout, with double doors opening onto the rear garden, perfect for entertaining or relaxing.

The first floor offers two generously sized double bedrooms and a stunning, modern family bathroom, finished to an excellent standard and offering great space.

The second floor is home to an impressive loft-conversion master suite, spanning the entire top floor. This superb room includes a sleek en suite, a Velux window to the front, and views over the cricket field to the rear, a gorgeous outlook that gives this space something special.

Outside, the rear garden is a fantastic, low-maintenance space featuring an artificial lawn, decorative planters, and a paved seating area. To the rear sits a versatile garden room, ideal as a home office, gym, studio, or hobby room.

Situated in a highly sought-after location with great amenities and transport links nearby, this home offers everything for modern family living.

Don't miss out - call us today to arrange your viewing!

Available Date: 20 Nov 2025

Tenure: Freehold

Council tax band: B

Location

Situated in the highly sought-after area of Kingswood, Rodney Road offers a perfect balance of convenience and community. The area is known for its excellent local amenities, including shops, cafes, and restaurants, all within easy reach. Families benefit from a selection of well-regarded schools nearby, while outdoor enthusiasts can enjoy parks, green spaces, and local sports facilities.

Transport links are excellent, with easy access to major roads and public transport options, making commuting straightforward. The area also boasts a friendly, welcoming community, making it ideal for families, professionals, and anyone looking for a vibrant yet peaceful neighbourhood.

Floors/rooms

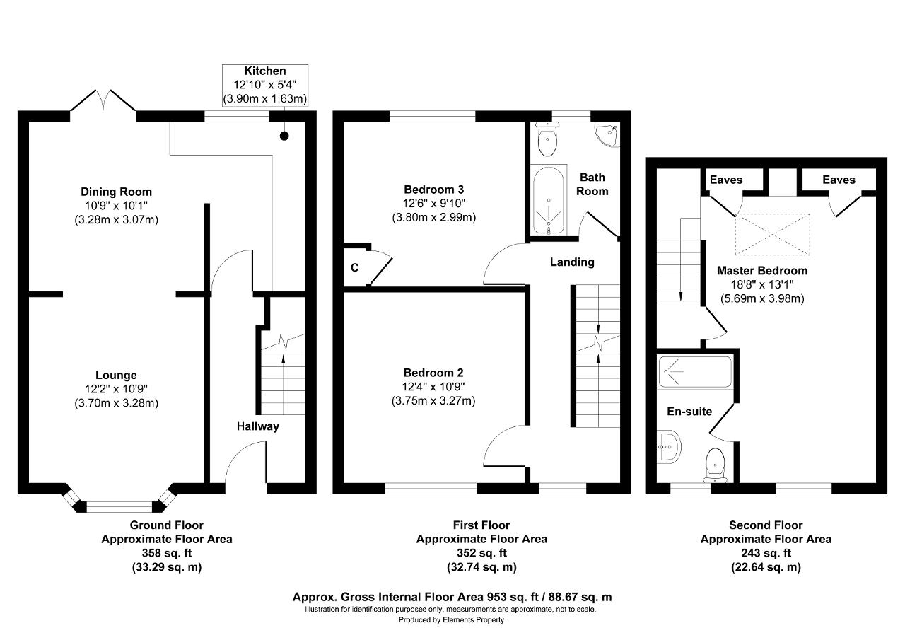
Ground Floor

Entrance Hall - UPVC door to front with frosted panel. Rad. Storage under stairs.

Kitchen - 12' 9'' x 5' 4'' (3.9m x 1.63m) UPVC aspect to rear. Wall and base units with space for washing machine and fridge freezer. Integrated slimline dishwasher. Hob. Eye level oven and microwave. Tiled splashback surround. Sink with drainer and mixer tap.

Dining Room - 10' 0'' x 12' 4'' (3.07m x 3.78m) UPVC double doors to rear. Rad.

Lounge - 12' 1'' x 10' 9'' (3.7m x 3.28m) UPVC bow aspect to front. Gas fire. Max measurements. Rad.

First Floor

Landing - UPVC aspect to front.

Bathroom - UPVC frosted aspect to rear. Bath with shower over, WC and vanity sink unit. Rad. Partly tiled.

Third Bedroom - 12' 5'' x 9' 9'' (3.8m x 2.99m) UPVC aspect to rear. Rad. Cupboard / wardrobe. Max measurements.

Second Bedroom - 12' 3'' x 10' 8'' (3.75m x 3.27m) UPVC aspect to front. Rad. Max measurements.

Master Bedroom - 18' 8'' x 13' 0'' (5.69m x 3.98m) UPVC aspect to rear. UPVC skylight to front. Max measurements. Rad.

Second Floor

Second Landing - UPVC skylight.

En suite - UPVC frosted aspect to rear. Walk in shower, large vanity unit. WC. Heated towel rad. Under floor heating. Fully tiled.

Exterior

Rear Garden - Paved seating area, artificial lawn surround by planters. Outbuilding and shed. Enclosed by fence panels.

Front Garden - Gate to decorative pebbled area with path leading to entrance.

Garden / Music Room - UPVC aspect to front overlooking the garden. WIFI.

Additional Information

Local Authority: South Gloucestershire Council
Council Tax Band B

Services
Mains Water, Mains Gas, Mains Electricity, Mains Sewerage.

Agents notes
1. When making an offer on this property we will ask you to produce identification documentation to comply with Money laundering regulations and ask for your co-operation in order that there will be no delay in agreeing the sale.
2. While we endeavour to make our sales particulars fair, accurate and reliable, they are only a general guide to the property and, accordingly, if there is any point which is of particular importance to you, please contact the office and we will be pleased to check the position for you, especially if you are contemplating travelling some distance to view the property.
3. The measurements indicated are supplied for guidance only and as such must be considered incorrect.
4. The particulars have been prepared in good faith but do not constitute fact or part of any offer or contact. The particulars should be verified by any prospective buyer.

For further information on this property please call 01454 529026 or e-mail [email protected]

EPC Graph

Interested in This Property?

01454 529026

[email protected]

Request a Viewing

Share this property:

RightmovePRSGoogle Reviews